Centre d’hébergement à Luxembourg-Belair
2018-2020
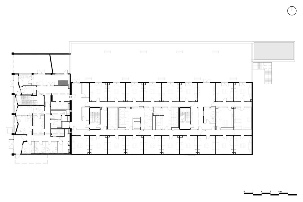
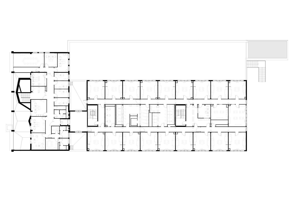
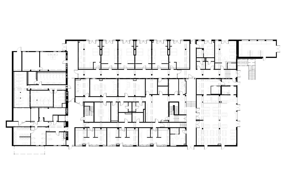
Le projet de centre d’hébergement pour demandeurs de protection internationale (DPI) est un projet de transformation d’un ancien garage automobile, situé n°293, route d’Arlon à Luxembourg. La parcelle cadastrale N°82/5758 de la section HoF de MerlNord, accueille le projet et est accessible à la fois depuis la route d’Arlon au nord et depuis la rue de l’Ouest au sud. Le centre d’hébergement est destiné à l’accueil d’environ 250 personnes, essentiellement des primo-arrivants sur le territoire luxembourgeois. Le caractère d’urgence de ce projet à vocation humanitaire prévoit la transformation rapide et ingénieuse de l’ancien garage en lieu convivial et saint. La durée du chantier prévue est d’un an pour réhabiliter plus de 3000 m² et créer une extension en bois de plus de 2000 m². La structure abrite, entre autres, une zone administrative sur deux niveaux, où se trouveront des bureaux de l’Office National pour l’Accueil, d’une ONG, du Ministère des Affaires Etrangères ainsi qu’une zone médicale. La structure comprend également deux étages de chambres, pièces communes et sanitaires, ainsi qu’un étage avec des dortoirs de 10 à 12 personnes, y compris une buanderie, un local coiffeur ainsi qu’un réfectoire et une cuisine de distribution.














