Ecole primaire à Luxembourg-Gasperich
2018
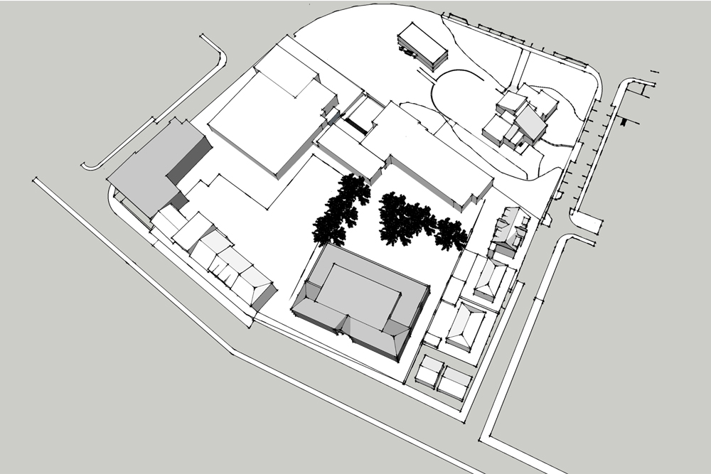
Depuis quelques années, l’école et le foyer scolaire de Gasperich constituent un campus scolaire, doté d’équipements sportifs, d’espaces de récréation et idéalement situé au cœur du quartier. Cependant, le fonctionnement du site et son développement éventuel sont confrontés à certains défis découlant de l’historique des constructions, mais aussi de la situation foncière, et plus précisément du voisinage avec un tissu bâti complexe, à la fois résidentiel et artisanal. En 2015, Polaris Architects a réalisé une première étude pour la rénovation et l’extension du bâtiment de la Spillschoul avec l’ajout de 3 nouvelles classes. A la demande de la Ville de Luxembourg, Polaris a ensuite eu pour objectif d’analyser la situation existante du site et de formuler des hypothèses spatiales et volumétriques pour le développement quantitatif et qualitatif du campus scolaire de Gasperich. Ensuite, en 2018, nous avons travaillé sur la réalisation d’un avant-projet pour l’extension et la rénovation du bâtiment de la Primarschoul.










