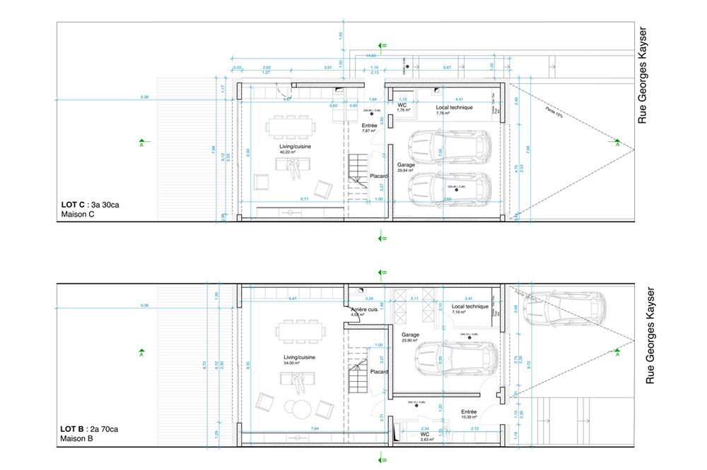
Trois habitations à Kehlen-Nospelt

2017-2022

OP#212

AUTRES PROJETS