Espace de travail à Luxembourg-Gare

2021-2022

OP#290

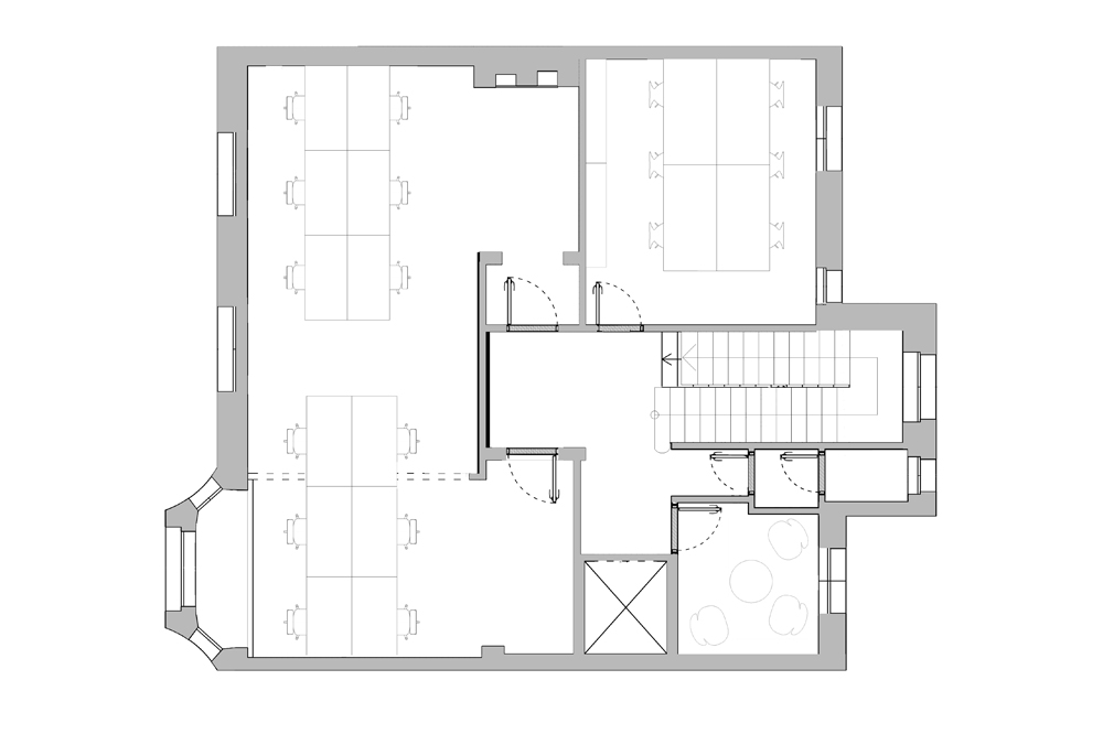
A la fin de l’année 2021, le groupe de média luxembourgeois indépendant Maison Moderne a installé ses rédactions dans un immeuble historique de l’avenue de la Liberté dans le quartier de la gare à Luxembourg. Polaris Architects a conçu le réaménagement de l’étage d’accueil en un espace de travail et de réunion contemporain et lumineux. Le projet inclut la création d’une table de conférence et de menuiseries intérieures sur mesure ainsi que la conception de dispositifs d’absorption acoustique intégrés aux cloisons légères.

AUTRES PROJETS